静岡市の中古マンション【静岡マンションなび】

一般物件数: 49 件 : 会員物件数: 173

住所
静岡マンションなび
一般 32 件 | 会員 90
静岡マンションなび
一般 11 件 | 会員 54
清水区
一般 6 件 | 会員 29
マンション検索             
お気に入り             

令和8年6月下旬、リノベーション完了予定!

お問合せ番号 【052683】



物件種目
中古マンション
構造
SRC造13階建 4階部分
価格
3,690万円  (税込)
管理費
13,300円/月
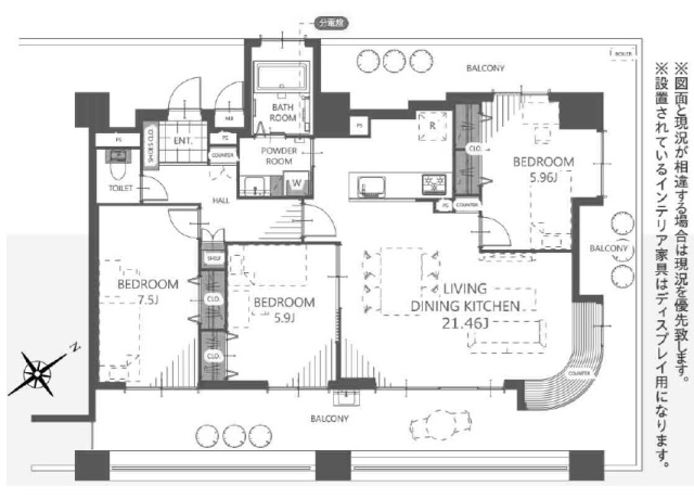
間取り
3LDK
修繕積立金
27,000円/月
専有面積
壁芯84.08㎡
築年月
平成15年10月築
バルコニー面積
44.80㎡
総戸数
32戸
所在地
静岡市葵区吉野町
交通
JR「静岡駅」徒歩約12分 静鉄「清閑町」バス停徒歩約1分
間取内訳
LDK21.46・洋7.5・洋5.9・和5.96
現況
空室
引渡日
相談
用途地域
近隣商業地域
学校区
新通小・末広中
施工会社
鉄建建設㈱
取引態様
仲介
管理形態
委託管理(日本ハウズイング㈱・日勤)
本体設備
電気・都市ガス・公営水道・公共下水・オートロック・エレベーター・宅配ボックス
各戸設備
TVモニター付インターホン
駐車場
有6,000円~13,000円/月 ※要確認
備考
ペット飼育可

※令和8年6月下旬リノベーション完了予定
・システムキッチン、ユニットバス、洗面化粧台、トイレ、建具、配管等交換
・クロス全室貼り替え、床張り替え等
最終更新日:2026-04-30